By Mike Scott
Once upon a time, it was as about as prominent as a building in New Orleans could be, right there on Canal Street at the edge of the city’s famed Storyville District and for decades a hive of local comings and goings.
Today, however, it’s among the pantheon of the Crescent City’s “ain’t there no more” buildings, and reader Susan Gilmore wants to know more about it.
“I have one,” Gilmore wrote in an email exchange. “What about the train station on Canal Street next to Krauss Co.?”
Many readers will know well the Krauss Building, which, as part of the once-thriving Canal Street shopping scene, probably deserves its own space in this column one of these days. They might also know that next to it is – nothing.

There’s just the wide Basin Street neutral ground and a 12-foot granite statue of South American freedom fighter and political leader Simon Bolivar dating to the administration of Mayor Chep Morrison.
But for more than a half-century before the statue was erected, that wide stretch of neutral ground was home to the New Orleans Terminal Station – later more commonly known as the Southern Railway Station – a mammoth train depot that was one of a handful of such terminals serving the city during the heyday of rail travel in the city.
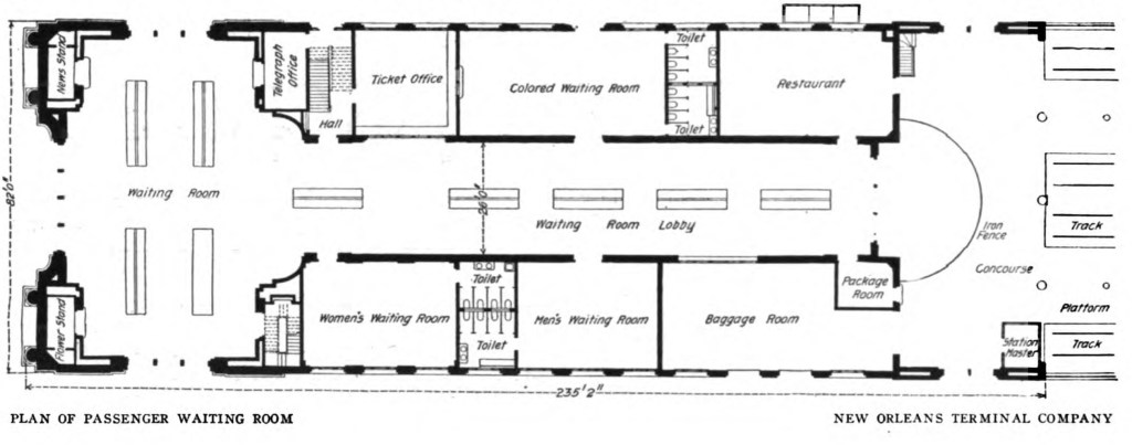
Although scaled back somewhat from original plans, the $260,000 Beaux-Arts building was still far more strikingly designed than its brethren in the city, which trended more toward the utilitarian than the ornamental.
Boasting a façade dominated by an arched array of window panes measuring some 40 feet high and 30 feet wide – with similar, though slightly smaller, arched arrays on its sides – the New Orleans Terminal building was notably designed by the Chicago-based architect Daniel H. Burnham.
(That’s the same Daniel H. Burnham who, among other things, designed the Flatiron Building in New York, Union Station in the nation’s capital and pretty much all of Chicago.)
Completed in 1908 under the auspices of the New Orleans Terminal Co., the cavernous main structure measured 82 feet on its Canal Street side and stretched 235 feet down Basin.

The main room was built on a steel frame skinned with granite and Bedford stone. Behind it stretched a two-story wing made of pressed St. Louis brick, gray in color to complement the Bedford stone of the main building, and a copper roof.
While hardly crowded with architectural ornamentation, the terminal’s exterior columns and arches imparted a simple but stately Neoclassical-inspired feel – or, as the Jan. 13, 1909, edition of The American Architect described it: “a sane adaptation of the modern French.”
Stepping inside from the Canal Street entrance, travelers would have found themselves in the impressive main room, featuring a domed ceiling overhead.
“To a height of 12 feet above the floor, the side walls are finished in marble; above is cement, in imitation of stone, treated to harmonize with the marble,” The American Architect wrote. “Here, again, one notices the satisfactory treatment of color values and the restful character of the tones employed.”
The floors boasted mosaic tile, with a newsstand, a flower stand and a telegraph office nestled in three of the four corners. Just beyond the main room was a hallway off of which the ticket offices were located, along with waiting rooms – one for passengers of color, and one each for white men and white women – as well as a restaurant and baggage room.
A second floor, finished in oak, was dedicated largely to offices.

In typically New Orleans laissez-faire fashion, the furniture hadn’t been delivered by the time the building opened, so temporary pieces were brought in for opening day on May 30, 1908, according to The Daily Picayune. A photo published in January 1909 by The American Architect, however, showed the finished product boasted a tasteful character, hovering comfortably between spartan and ostentatious.
Behind the waiting rooms was the business part of terminal – “the sheds” – where the tracks stretched 704 feet back to Conti, with all-concrete passenger platforms. It would be there that countless passengers first stepped foot on New Orleans soil, and where countless others boarded for various far-flung destinations.
While it wasn’t met with much speechifying, the terminal’s opening was cause for celebration, marked by a brass band and, for the muckety-mucks in attendance, champagne.
For decades, it was a central part of New Orleans. But by mid-century – with automobile travel gaining in popularity – the old terminal just wasn’t as vital to the city as it once had been. The same was true for the other terminals in town.
With work completed in 1954 on the then-new Union Passenger Terminal on Loyola Avenue, which was designed to unite the city’s myriad rail lines under one roof, the city bought the then-vacant Southern Railway Terminal and, in May 1955, unceremoniously demolished it.
Just like that, the once-celebrated building was gone – and with it an era in New Orleans transportation history.

This story was originally published in The Times-Picayune/The New Orleans Advocate and on NOLA.com in January 2021.